Catherine DONADIO Négociatrice
Télécharger la fiche

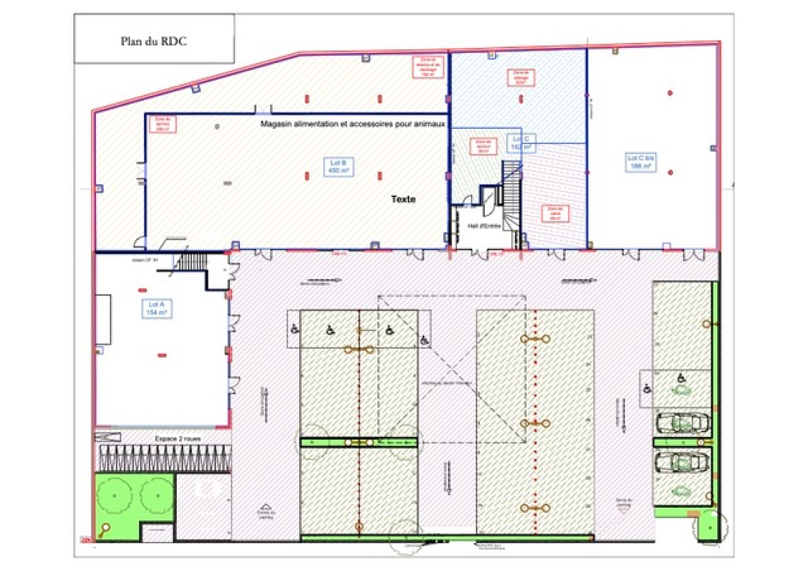
Local d'activité 99 m²

Le Luc (83340)
1 757 € / mois HT - HC* * Hors charges * HT : Hors Taxes Référence BR03244

A propos de ce bien

Le LUC - Emplacement premium, dans la zone commerciale du Fanguet, grand parking dédié à la clientèle, au sein d’un bâtiment neuf, construit dans le respect des dernières normes en vigueur, nous vous proposons des locaux professionnels ainsi que des bureaux.


Proximité centre commercial Leclerc, facile d’accès, forte visibilité, stationnement 39 places autos et 17 motos


Zone de chalandise importante, secteur résidentiel en développement


Au 1er étage avec ascenseur, accès PMR, une cellule 99m² lumineuse nombreuses baies vitrées, vous attend pour l’exercice d’activités commerciales, artisanales, de services, conseil, de formations ou encore activité libérale


1757 € HT LOYER MENSUEL - CHARGES 18€ HT M² /AN - TF 20€ M²/AN - DEPOT DE GARANTIE 3 MOIS DE LOYER HT


Honoraires 4% HT du montant du loyer annuel à charge propriétaire


Honoraires 4% HT du montant du loyer annuel à charge locataire


Tous les lots du 1er étage bénéficient de terrasses en coursive et sont livrés cloisonnés et sols finis au choix du preneur (parquet pvc ou moquette)


Cellules modulables de 57 à 199m² à l’étage , 154 et 188 m² au RDC


Pour tous renseignements spécifiques liés à chaque lot et visites : Votre Conseiller Mme Richard : 06.14.18.36.08

Caractéristiques de ce bien

Activités

  • Type de transaction Local d'activité

Agencement

  • Superficie m2 99 m²
  • Vitrine(s) OUI
  • Ascenseur 1

Secteur

  • Code postal 83340
  • Ville Le Luc

Agencement extérieur

  • Nombre d'étage 1

Diagnostics & compléments

  • Année de construction 2024

Diagnostics énergétiques

Consommation énergétique
A B C D E F G
Emission de gaz à effet de serre
A B C D E F G
DPE vierge

Informations financières

Loyer HT 1 757 € / mois
Dont état des lieux Non renseigné
Dépot de garantie Non renseigné
Bail COMMERCIAL

Autour du bien

  • Commerces et santé
  • Loisirs
  • Ecoles
  • Transports
  • Pratique